PARTIES COMMUNES LOGEMENTS 70 OPERATIONS

Ile de France (75)
Seqens

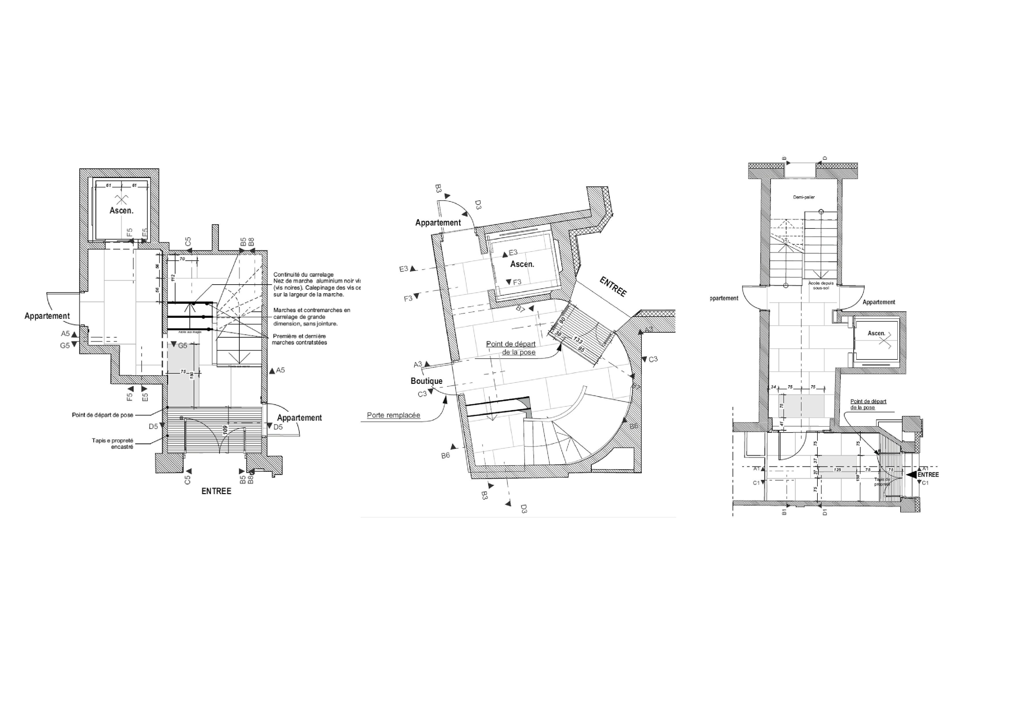
Travaux de valorisation des parties communes RDC d’immeubles collectifs, importants lieux de transition entre espaces communs et privés, permettant de conforter l’identification et l’appropriation des lieux par les habitants, et contribuant au mieux vivre ensemble.

A partir d’un cahier des charges établi par le maître d’ouvrage, déploiement d’un concept dans les halls et les parties communes de tous les immeubles du parc, existants ou en construction.

 

Le concept propose une ambiance à dominante minérale réchauffée par des touches de bois. L’emploi d’un carrelage texturé qui prend la lumière permet d’orienter l’espace vers le mur de boites aux lettres. Ce dernier se retourne ensuite dans la circulation horizontale et guide les usagers jusqu’à l’ascenseur.

Réhabilitation Logement et hébergement Architecture
Maître d'ouvrage
Seqens
Type de travaux
Construction, Réhabilitation
Programme
Sur 70 sites en Ile-de-France, aménagement intérieur des parties communes
Statut
En cours
Budget
20 k€ à 100 k€ HT